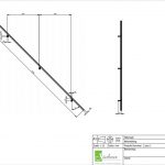
Trapleuning van staal
Trapleuning van staal. Steeds meer interieurstylisten plaatsen een trapleuning van staal op maat. Een trapleuning van staal ziet er strak uit. De duurzaamheid van staal telt mee in de populariteit van de stalen trapleuning. Deze trapleuning is gecoat met zwarte structuurlak. Door structuurlak te gebruiken is het oppervlak makkelijk vlekvrij schoon te maken. Met ons maatwerk zijn er vele mogelijkheden om een trapleuning te maken. We helpen u graag met de trapleuning of Balustrade op maat die voor u ideaal is. Een trapleuning of Balustrade op maat kan gecoat worden in elke gewenste RAL kleur.
Wilt u ook iets op maat laten maken?
We maken graag een vrijblijvende offerte voor uw maatwerk project.
Bekijk hier alle sieben design projecten
All
- All
- 3D CAD Solid Works
- Deuren van staal
- Horeca & winkelinterieur
- Interieur
- Maatwerk staal
- Tafels
- Verlichting
- Werkplaats
